La résidence Karé Terre-Sainte se situe dans le quartier animé de Terre-Sainte à Saint-Pierre, à deux pas du CHU et à proximité du centre universitaire, des commerces, des transports et des plages.
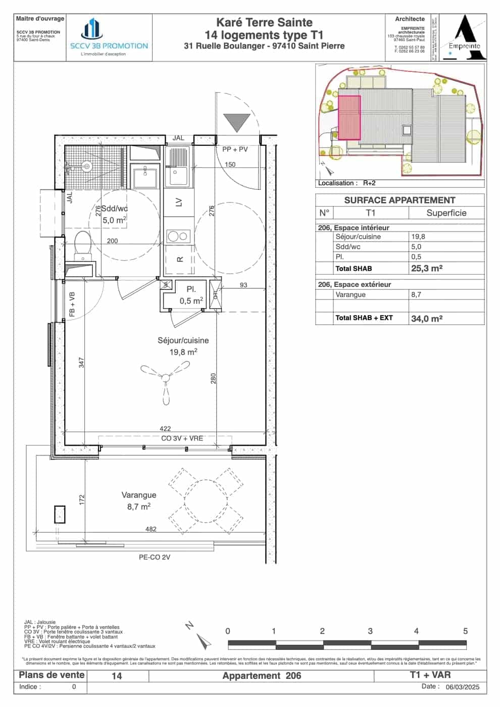
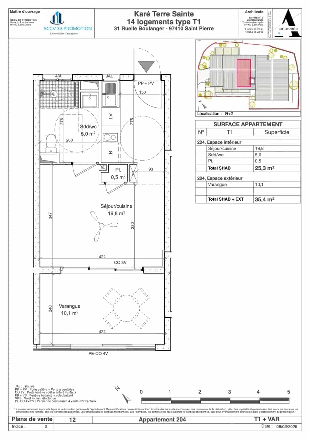
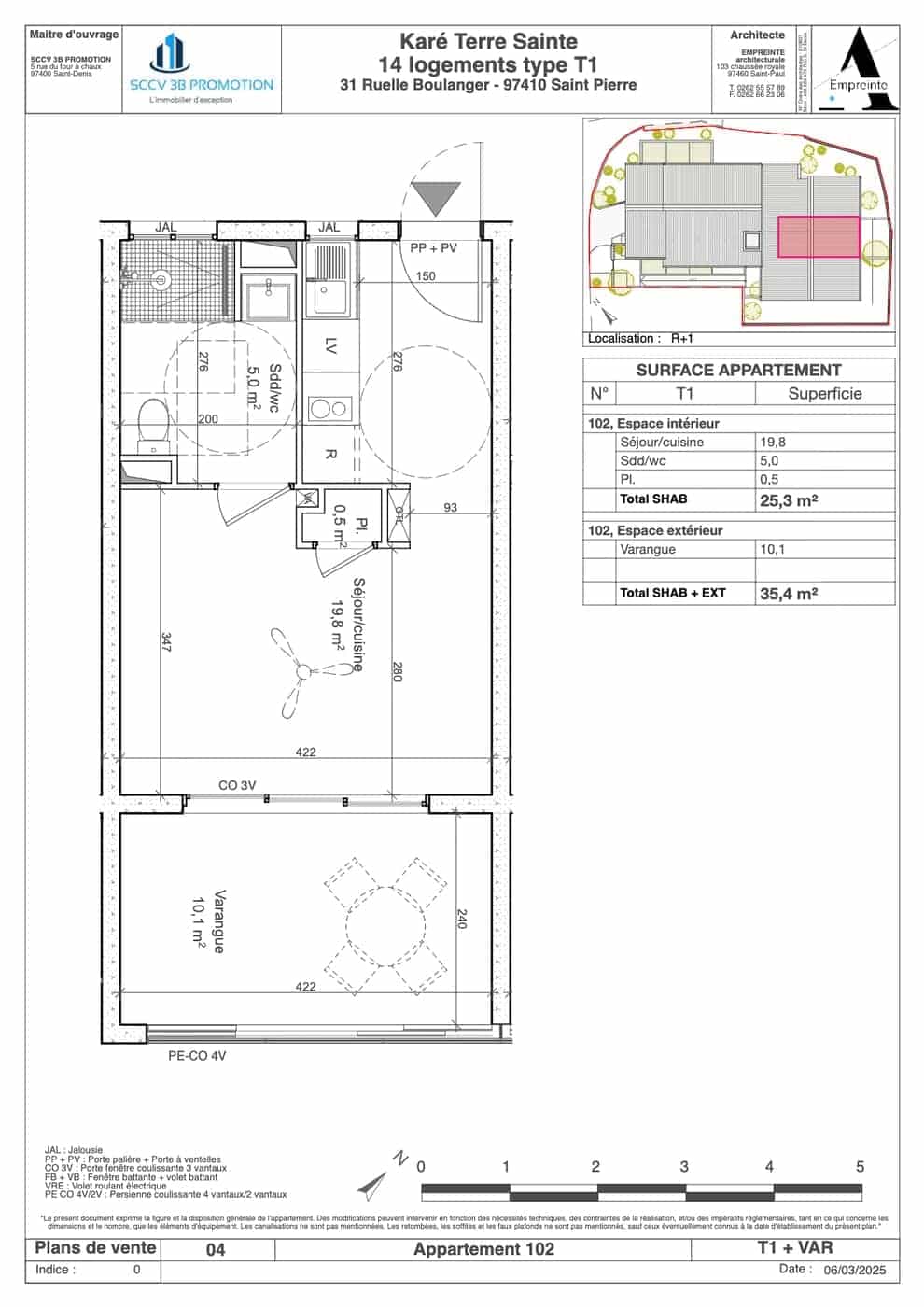
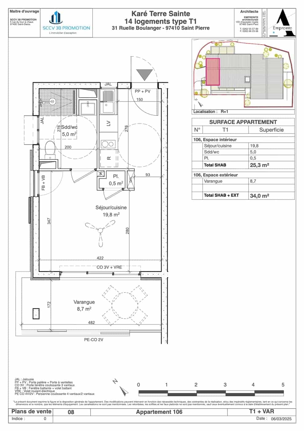
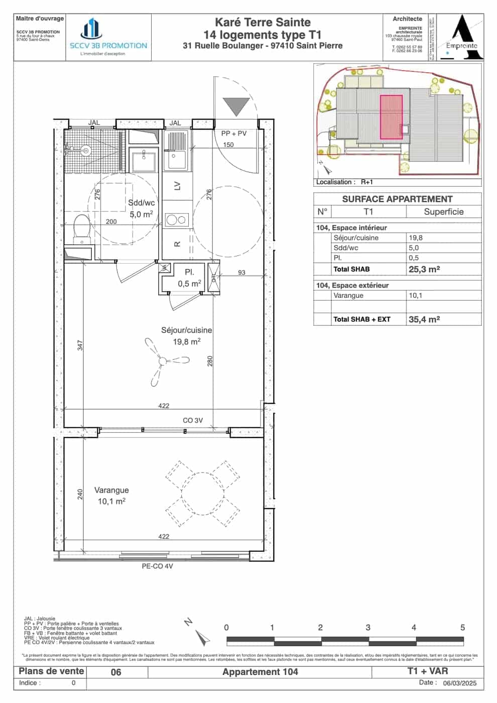
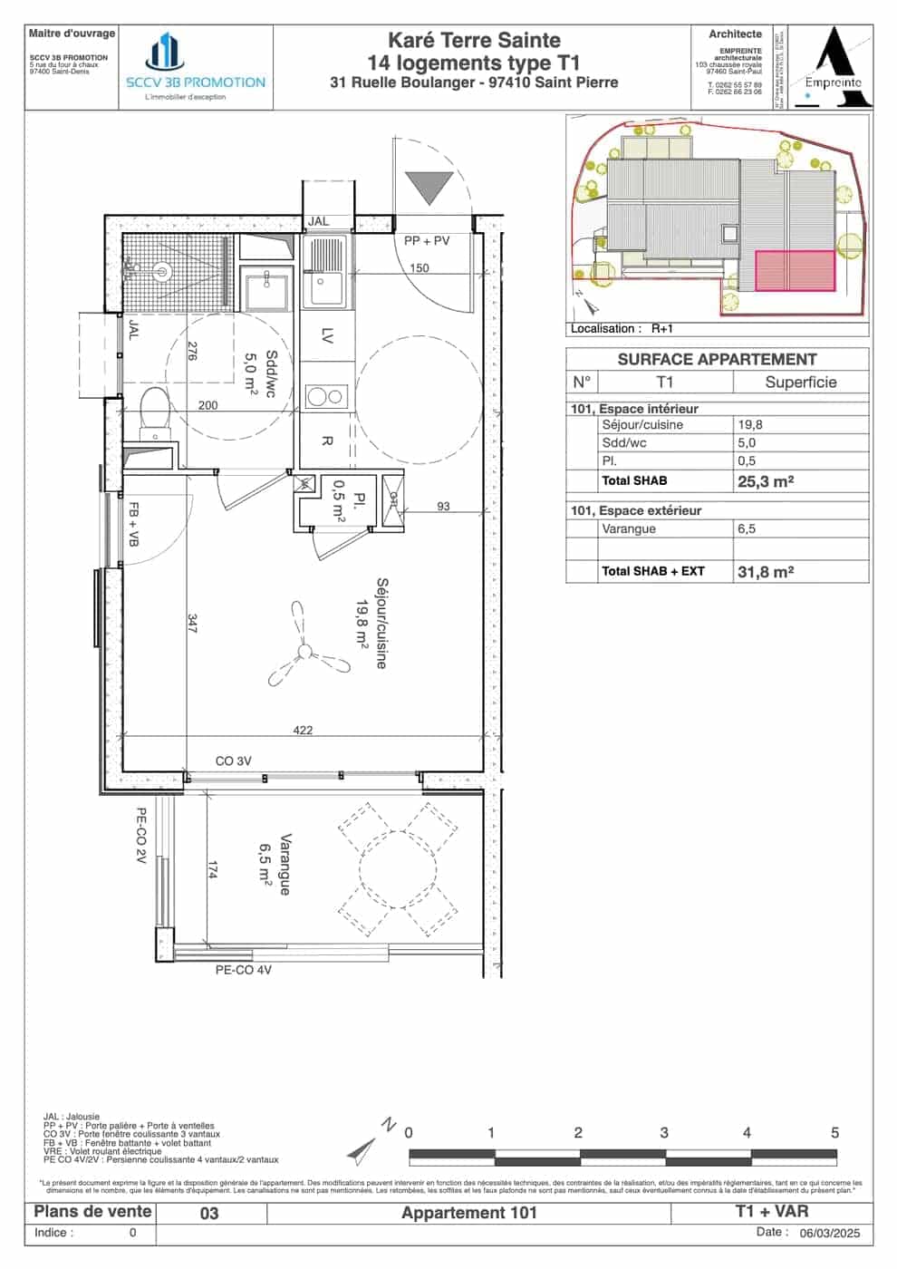
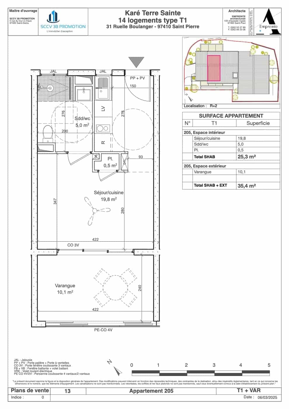
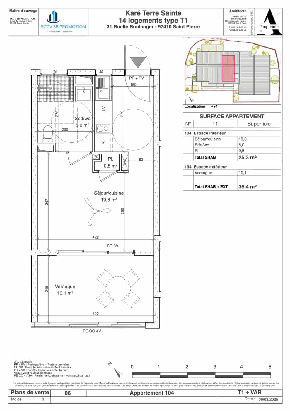
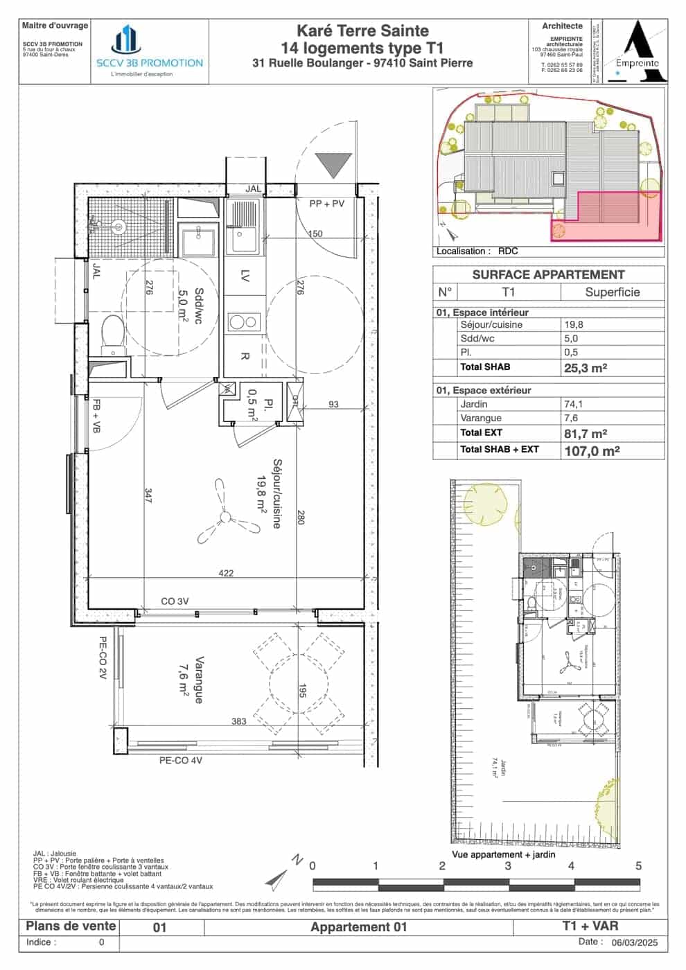
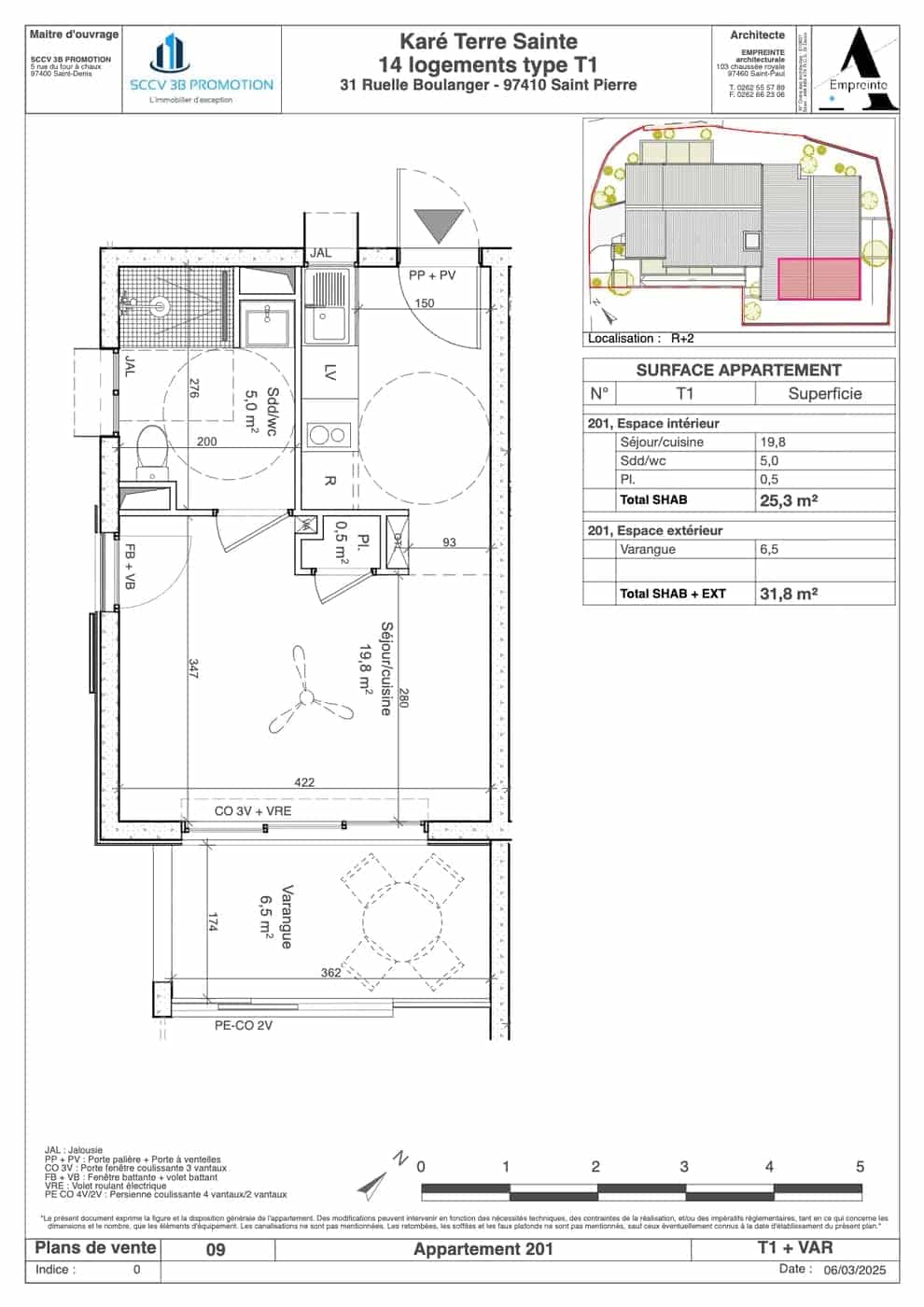
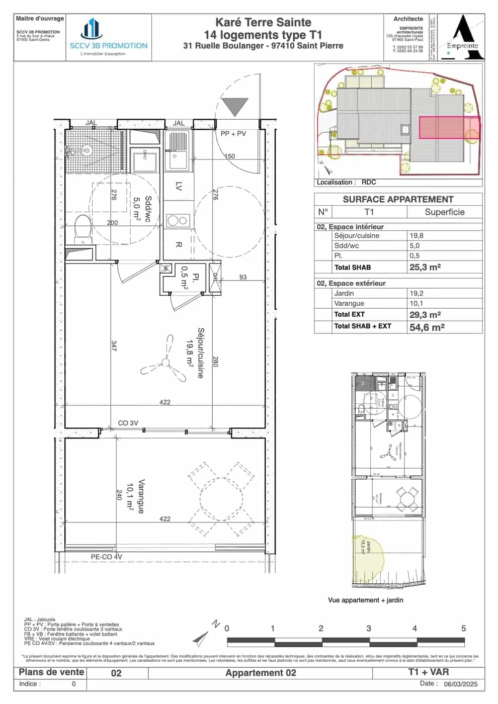
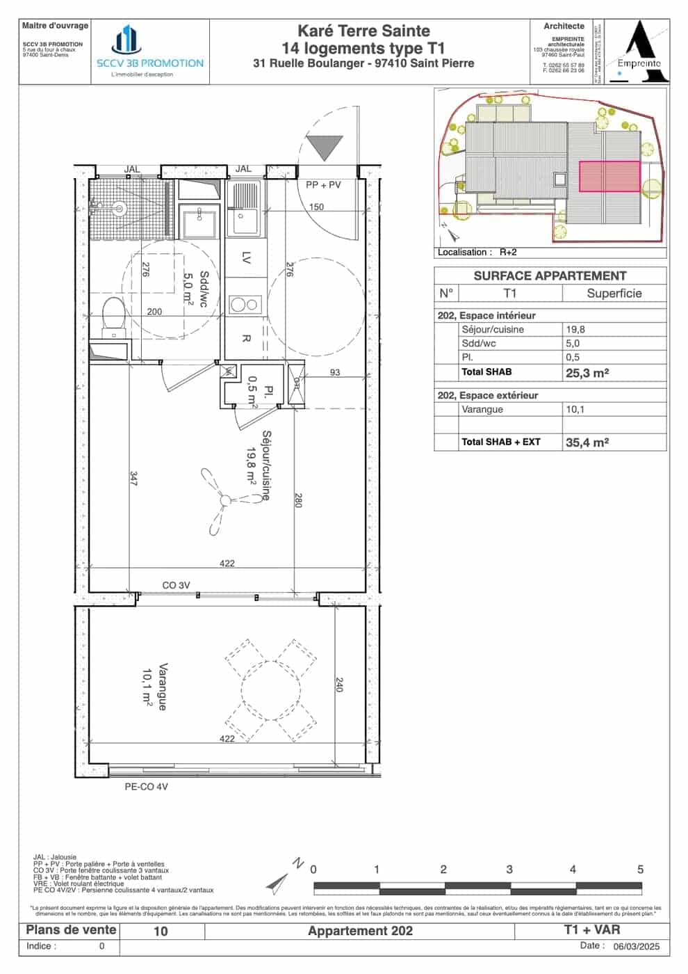
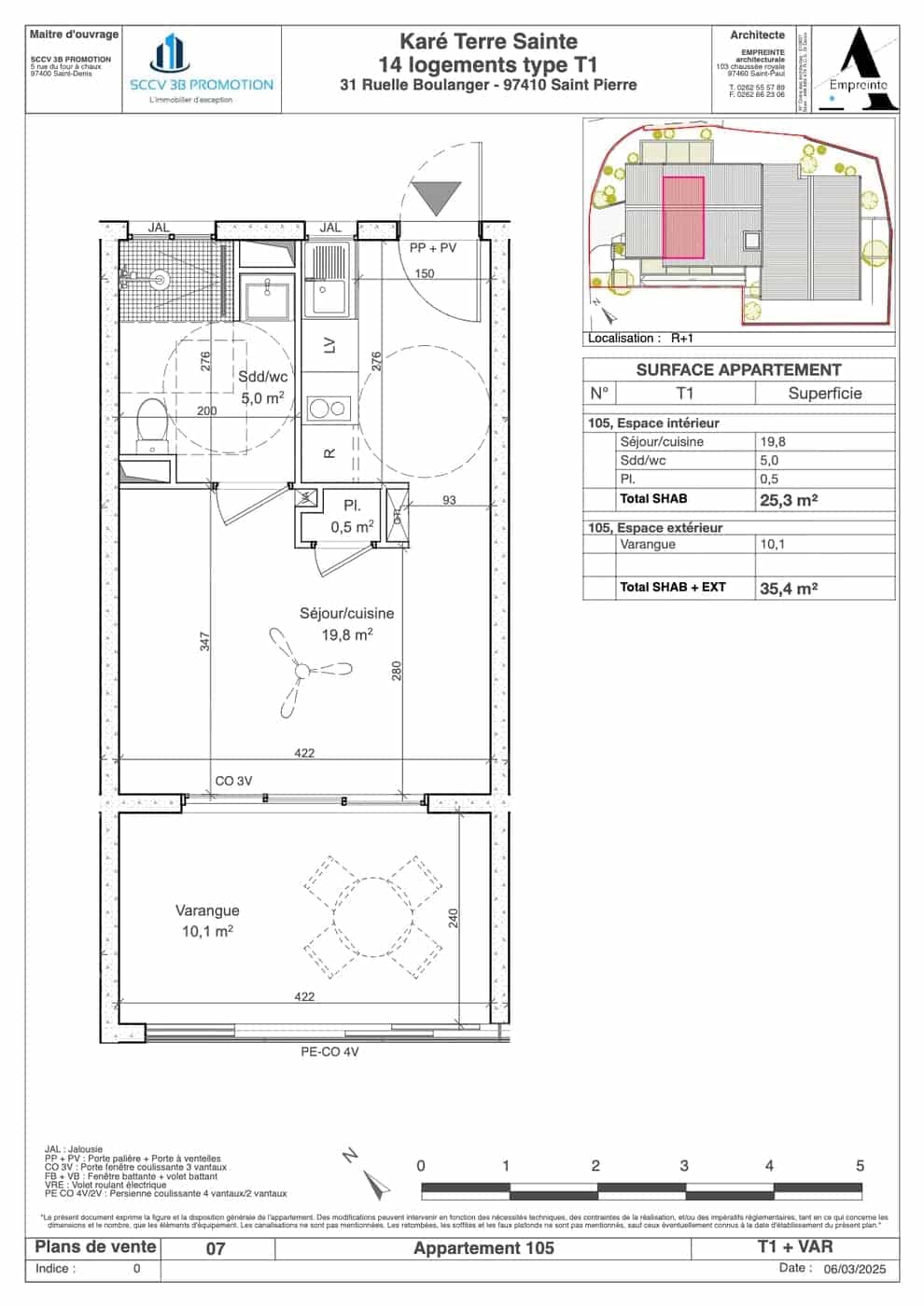
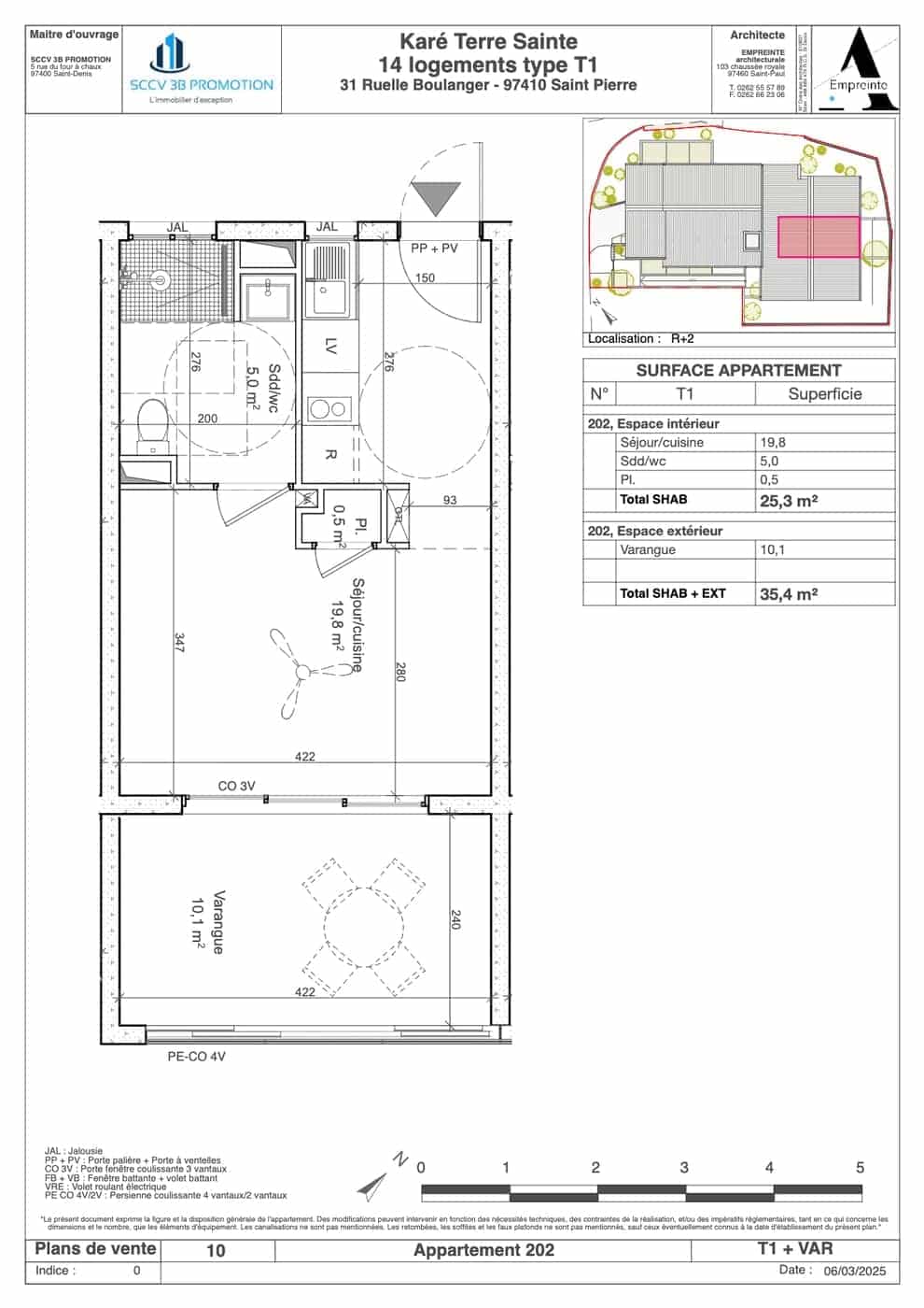
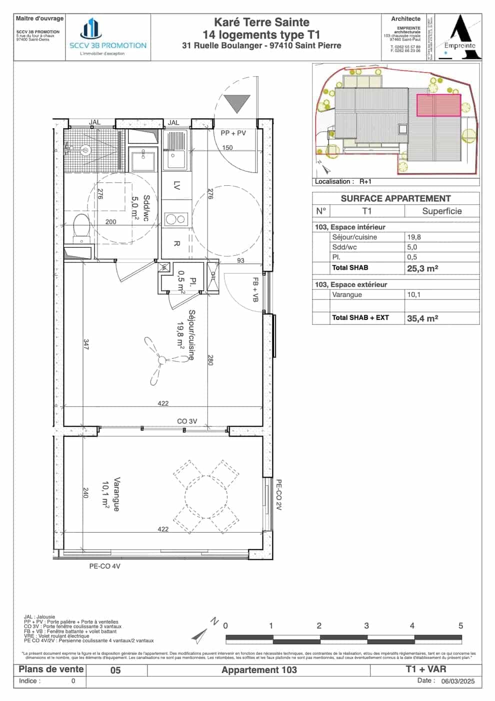
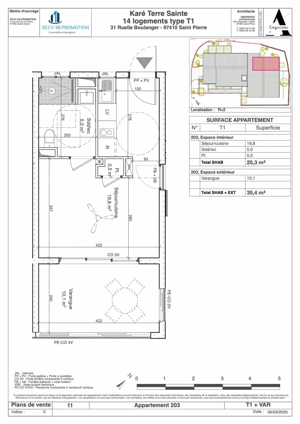
Elle se compose de 14 appartements de type T1 de 25,3 m², spécialement pensés pour la vie étudiante :
Espace optimisé avec coin nuit, séjour et bureau
Cuisine équipée
Salle de bain moderne
Varangue privative
Résidence sécurisée
14 logements adaptés aux besoins des étudiants
Emplacement stratégique : CHU, universités, centre-ville et commodités
Forte demande locative étudiante à Saint-Pierre
Éligible au Crédit d’Impôt Outre-Mer (CIOP 35 %)
La résidence Karé Terre-Sainte offre une opportunité d’investissement fiable et rentable, dans un secteur dynamique où la demande en logements étudiants est en constante croissance.
Comparer les annonces
Comparer