Résidence LE ROYAL

  • À partir de 350,000€
58 Chaussée Royale, Ouest, Saint-Paul
VEFA (Vente en l'État Futur d'Achèvement)
Résidence LE ROYAL
58 Chaussée Royale, Ouest, Saint-Paul
  • À partir de 350,000€
  • Adresse 58 Chaussée Royale
  • Ville Saint-Paul
  • Code postal 97411
  • Secteur Ouest

Aperçu

ID de propriété: Le Royal
  • Avec parking, T3, T4
  • Type de propriété

Description

La Résidence LE ROYAL, la proximité dont vous rêviez…..

La résidence est située en plein centre de la ville Saint-Paul dans le quartier historique de la Chaussée Royale.
A proximité de la cathédrale de la Conversion de Saint-Paul, de la zone commerciale de la rue Marius Ary Leblond et de son front de mer avec son embarcadère, son marché forain, ses restaurants et sa vie nocturne animée.
A 10 minutes des stations balnéaires de Saint Gilles les Bains.
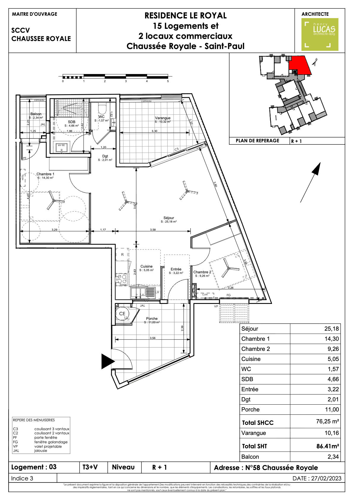
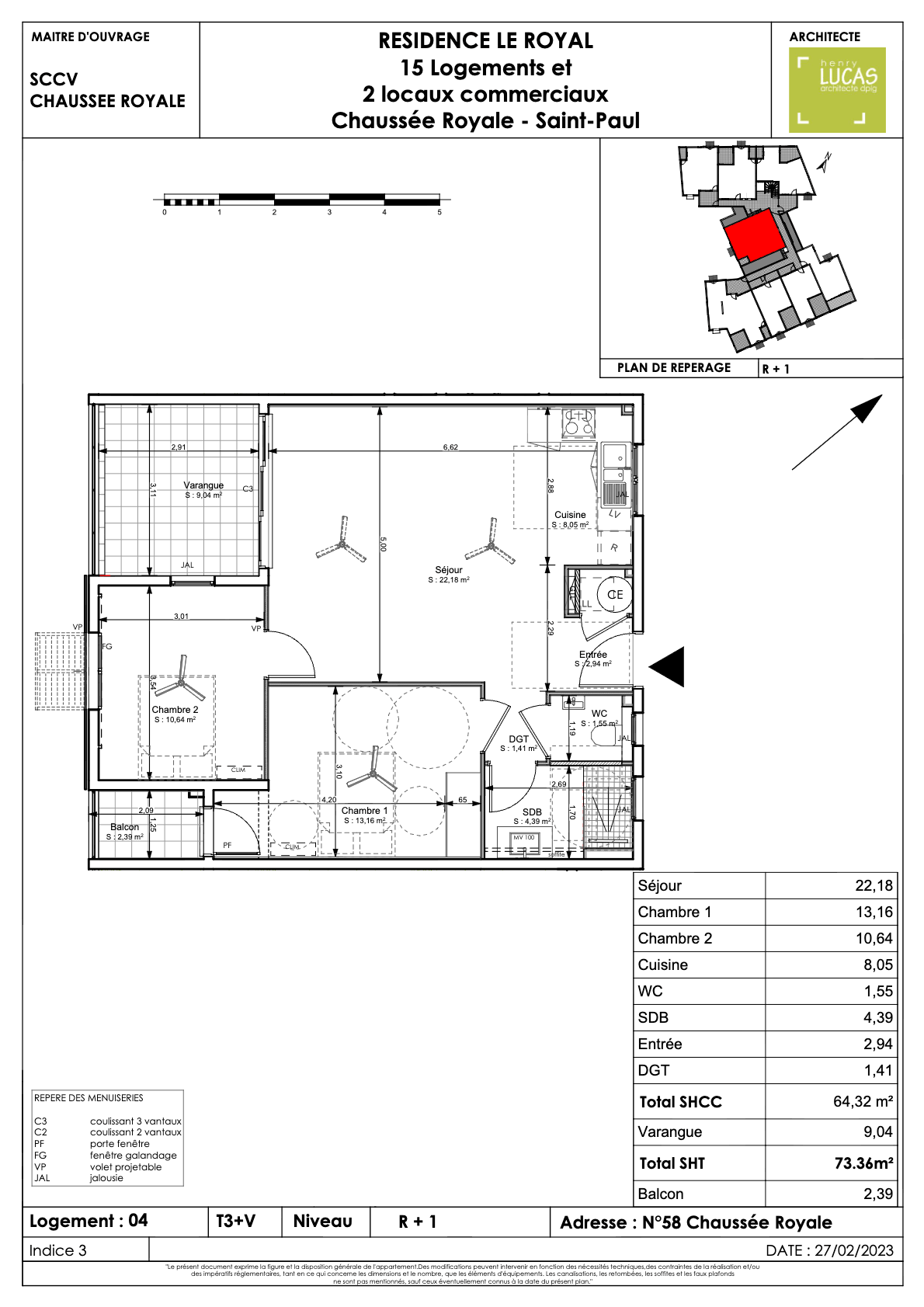
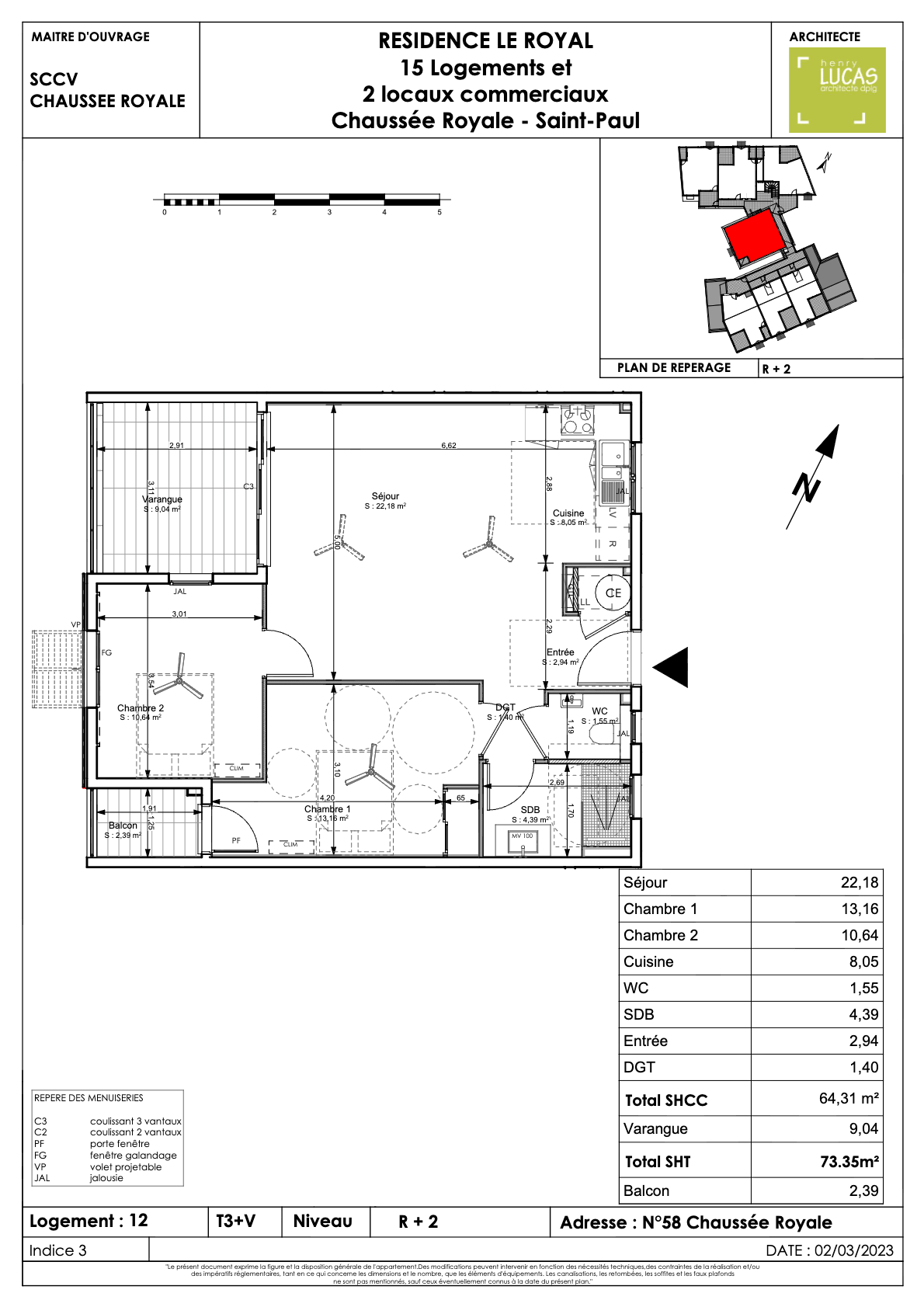
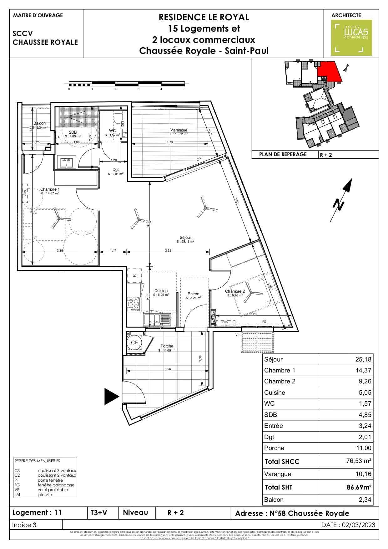
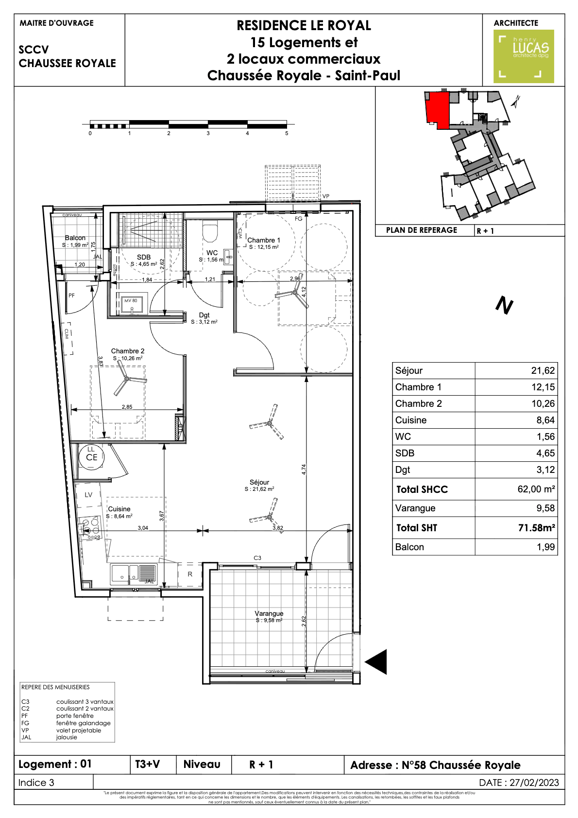
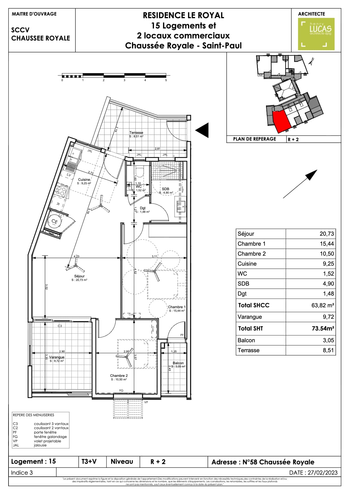
La résidence est composée de 15 logements de standing d’une surface utiles de 62m2 à 115m2 éligible au dispositif fiscal CIOP (Crédit d’Impôt Outre-Mer à 35 %), une opportunité rare pour les investisseurs souhaitant optimiser leur fiscalité tout en valorisant leur patrimoine immobilier :

  • Appartements spacieux avec parquet LVT façon chêne en intérieur et carrelage en Grès cérame – 60×60 dans la salle de bains, varangue, loggia et balcon
  • Chambres climatisées avec placard aménagés non intégrés, brasseur d’air
  • Cuisines de marque équipées et aménagées : meubles hauts et bas, plaque à induction, four, hotte, évier, plan de travail de marque française.
  • Salles de bains équipées et aménagées, douche à l’italienne avec caniveau.
  • Meuble vasque et robinetterie de marque. Miroir avec LED
  • Résidence sécurisée par digicode avec 1 ascenseur
  • Parkings en rez de chaussée

Lots disponnibles

image

Description:

image

Description:

image

Description:

Vidéo

Planifier une visite

Type de visite

Coordonnées

Afficher les annonces

Renseignez-vous sur cette propriété

Comparer les annonces

Comparer
Karim DINDAR
  • Karim DINDAR